Aktuality
Kategórie aktualít
Prípravné práce pred odovzdaním staveniska
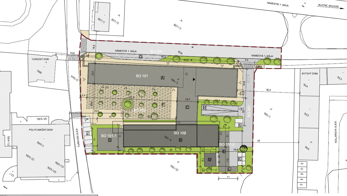
Spevnené plochy za poliklinikou
Jedná sa o dočasné spevnenie plochy počas doby výstavby polikliniky. Nakoľko výstavba polikliniky zoberie väčší počet zamestnaneckých parkovacích miest, mesto zabezpečilo pre personál polikliniky náhradnú parkovaciu plochu, aby nedochádzalo k prílišnému zaťaženiu parkovacích miest užívaných rezidentmi a ich návštevami v okolí. Táto dočasná plocha sa po ukončení výstavby plánuje odstrániť. Súčasťou prístavby novej budovy polikliniky bude aj podzemná garáž.
Výrub drevín
Pred odovzdaním staveniska realizátorovi sa 2. októbra 2025 začalo s odstraňovaním označených drevín, ktoré prešli výrubovým konaním.
Fotogalériu sme rozšírili o zábery z okolia; úpravy terénu sa dotknú len bezprostredného priestoru pred poliklinikou, ostatné stromy a zeleň zostanú nedotknuté.
Útvar údržby postupne odstráni všetky označené dreviny a mobiliár. Náhradná výsadba za odstránené dreviny bude realizovaná po ukončení výstavby polikliniky v zmysle podmienok uvedených v rozhodnutí o výrube drevín.


STRABAG – úspešný uchádzač verejného obstarávania
Účinnosť zmluvy Zmluva o poskytnutí NFP nadobudla po zverejnení v centrálnom registri zmlúv zo strany Ministerstva zdravotníctva SR dňa 10.6.2025.
https://www.crz.gov.sk/zmluva/10899120/?csrt=9456510484655304003
Proces verejného obstarávania bol ukončený, Zmluva o dielo zverejnená 11. 9. 2025, účinná od 12. 9. 2025. Úspešne vysúťaženým zhotoviteľom stavby Rekonštrukcia a prístavba polikliniky Senec je spoločnosť STRABAG Pozemné staviteľstvo s.r.o..
https://www.crz.gov.sk/zmluva/11290439/?csrt=9456510484655304003
Lehota výstavby je podľa uzatvorenej zmluvy maximálne 24 mesiacov.
Údržba mesta Senec
